Meting van stoomkwaliteit

Spirax Sarco engineer working in a steam plant

Wat kan het voor u betekenen?

Award

Standaarden bereiken

engineers

Kwaliteitscontrole en zekerheid

Hand shake 2

Ondersteuning door experten

Stoomkwaliteit

Wat houdt het in?

De kwaliteit van stoom is een belangrijke parameter voor optimale thermische prestaties. Deze dient aan een aantal eisen te voldoen, conform EN 285:2015. Regelmatige kwaliteitscontrole is hiervoor aanbevolen. Hiervoor kunt u beroep doen op Spirax Sarco.

Grenswaarden volgens EN285:2015

Niet-condenseerbare gassen

Niet-condenseerbare gassen in uw stoomnet zorgen voor een thermische barrière en dus een verminderde warmteoverdracht. 

Droogtegraad

In de praktijk bevat verzadigde stoom steeds een hoeveelheid meegesleurd water. Dit zorgt voor een verlaagde nuttige energie-inhoud per kg stoom.

Oververhitting

Oververhitte stoom zal de warmte uitwisseling vertragen en hierdoor uw procesefficiëntie negatief beïnvloeden.

Welke dienstverlening krijgt u?

Vóór de uitvoering

Een bezoek ter plaatse van een stoomexpert om na te gaan of de metingen uitgevoerd kunnen worden conform de geldende normen.

Tijdens de analyse

Plaatsing van de nodige meetinstrumenten.

Uitvoering van de verschillende metingen conform EN 285:2015.

Prestaties Spirax Sarco

Voorzien van alle gekalibreerde meetinstrumenten.

Uitvoeren van de thermische analyse. Optioneel chemische wateranalyse.

Rapport conform EN 285:2015.

Te voorzien door de klant

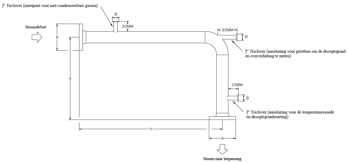
Meetpunt conform EN 285:2015.

Werkvergunning.

Aansluiting water in buurt van meetpunt.

Water afvoerleiding in buurt van meetpunt.

230 V AC ter beschikking in buurt van meetpunt.

Neem contact op

Wij staan u bij in het behalen van uw bedrijfs- en duurzaamheidsdoelstellingen

Gerelateerd aan meting van stoomkwaliteit